|
| 28021
Borgomanero c.so Sempione 117 Telefono: 340.7919196 ideecasamail@yahoo.com |
|
CASA INDIPENDENTE CON GIARDINO Comune di Romagnano Sesia (NO) Richiesta euro 89.000 cod.rocs89t |
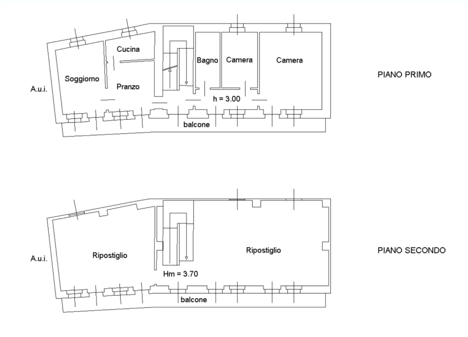
Casa indipendente su tre lati con cortile e giardino privato, composta da: Piano terreno: tre locali, risportiglio, corridoio, androne carraio. Piano primo: soggiorno, cucina/pranzo, due camere da letto, corridoio, bagno, grande balcone. Piano secondo: due grandi locali sottotetto eventualmente trasformabili in abitazione. Terreno posto nella parte posteriore dell' abitazione di circa 900 mq. con piccolo fabbricato indipendente annesso. L' immobile é di vecchia costruzione, si presenta in discrete condizioni di manutenzione e con poche opere di adeguamento puó essere subito abitato. Il riscaldamento é a metano con caldaia e termosifoni. Il tetto é in buone condizioni. Contattaci per una visita senza impegno ! Classe Energetica: " F " (342,98 kWh/m² anno) |


|
HOME VALUTAZIONI IMMOBILIARI ORGANIZZAZIONE COME RAGGIUNGERCI DOVE OPERIAMO VENDERE UN IMMOBILE ACQUISTARE UN IMMOBILE MUTUI INFORMATIVA PRIVACY |